千鳥ヶ淵ハウスは東京都千代田区三番町、内堀通り沿いに立地する13階地下2階建て、免震構造の高級賃貸マンションです。
2008年度グッドデザイン賞を受賞。千鳥ヶ淵側は雁行したガラス面が空を写す屏風のようなしつらえに、一方、内堀通り側は重ね格子の格式の高いデザインを採用し、街並みの一部を構成しています。外観の表情を変化させ、自然や周辺環境と調和した佇まいを実現しました。
千鳥ヶ淵ハウスはケン・コーポレーショングループが管理する高級賃貸レジデンスです。
ここが東京であることを忘れさせる、森の中の別荘地のような低層階。1キロ以上にわたる緑の樹幹と、その向こうに見える"丸の内"との見事な調和を味わう中層階。上層階の窓からは、皇居庭園の緑と丸の内の白金色の街並み。そして、その視界のほとんどを占める限りなく青い空。3つの色が交差するダイナミックな光景が眼下に広がります。見たことのない様々な東京の表情がそこにはあります。

広がりを追求したリビングで
寛ぎのひと時を。
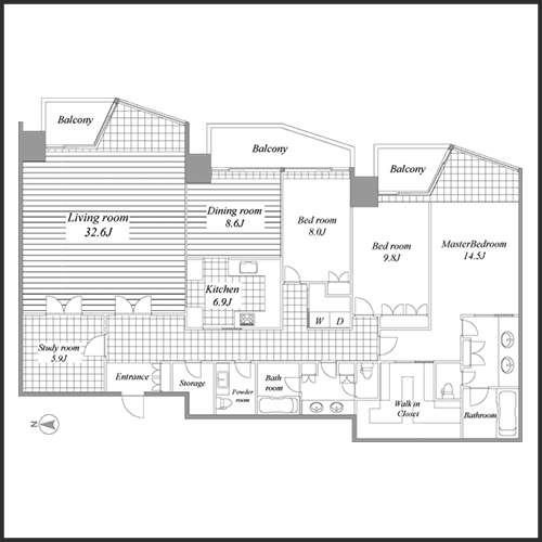
ゆったりとした時間を心から満喫するために「千鳥ヶ淵ハウス」では空間設計にこだわりました。ゆとりの天井高2650mm(基準階)のリビングは、四季折々に姿を変える窓越しの風景を愉しむために、ハイサッシを採用。フロア部分は広がりをもたらすために、バルコニーとリビングの高さを同じにした一体感のある空間としました。
各ベットルームには豊富な収納スペースを確保。出し入れしやすいクローゼットやウォーク インクローゼットを設けたプランもご用意。
ラグジュアリーなバスルームで
一日の疲れを癒す。
疲れを癒し、心身をリセットできるバスルーム。いまや、リビングと同じように住まいのリラクゼーションルームとなっています。バスルーム内部には、イタリア製のタイルを施し、落ち着いた雰囲気となっています。水栓金具には、ヨーロッパにおいてトップシエァを誇る、ドイツ・ハンスグローエ社のシャワーシステムを、また、パウダールームには、二つの洗面ボウルを装備したカウンターと一体となった洗面化粧台を採用しています。(タイプにより異なります。)機能性はもちろん、質にもこだわったラグジュアリーなスペースとしました。
細部までこだわり抜かれた
造形美と機能性の融合。
毎日の食卓を支えるキッチンには、外国製のハイグレードなアプライアンスを採用。料理が楽しくなるよう配慮されたオリジナルシステムキッチンには、ビルトインタイプの食器洗浄機やオーブンレンジを標準装備。豊富なキッチン収納は、スムースな開閉で奥の物まで取り出しやすい工夫がなされています。また、先進のオール電化システムの導入し、クリーンで安全な暮らしをお約束します。
また、お部屋の顔となるエントランスには、すっきりとした印象を引き立てるために、収納力豊富なシューズクローゼットや収納スペースを設けたプランもご用意しております。

24時間対応のフロントでは、我が家を感じさせるようなくつろぎの雰囲気で日常生活をきめ細やかなサービスでサポート致します。
フロントサービス
24時間有人管理/ご入居者への来客のご連絡/メッセージの受付・伝達/宅急便・郵便物の不在時の預かり/タクシー・ハイヤーの手配/周辺施設のご案内/各種インフォメーション・お取次ぎ
オプションサービス
ランドリーのお取次ぎ/ハウスクリーニングサービスお取次ぎ/各種新聞購買の取次ぎ/生鮮食品等デリバリー取次ぎ
レジデンスサービス
入居時の立ち合い/退去時の立会い/修理等の業者立会い/設備故障の手配
| 間取り | タイプ数 | タイプ名 | 面積 |
|---|---|---|---|
| Studio | 2 | A,B | 42.53-43.06 平米 |
| 1Bed | 5 | C,D,Dv,E,Ev | 76.9-125.7 平米 |
| 2Bed | 2 | F,G | 120.84-129.16 平米 |
| 3Bed | 7 | H,Hp,I,J,Jp,GA,FB | 187.69-240.77 平米 |
240.77m2(約72.83坪)
228.65m2(約69.16坪)
231.4m2(約69.99坪)
195.5m2(約59.13坪)
76.92m2(約23.27坪)
42.53m2(約12.86坪)
ライトマネージャー
テレビモニター付きインターホン
エアコンディショナー
キッチン周り収納
ラジエントヒーター及び電気オーブン ※1ROOMタイプを除く
食器洗い機
洗濯機・乾燥機※1ROOMタイプは洗濯機・乾燥機一体型
ディポーザー
キッチンシャワー水栓及び浄水器
フルオートバスシステム
洗面水栓・ボウル
トイレリモコン
浴室換気乾燥機
浴室レインシャワー
浴室シャワー水栓
| 物件名称 | 千鳥ヶ淵ハウス |
|---|---|
| 所在地 | 東京都千代田区三番町2-2 |
| 交通 | 半蔵門線 半蔵門駅 徒歩8分 半蔵門線 九段下駅 徒歩10分 東西線 九段下駅 徒歩10分 総武線 市ヶ谷駅 徒歩15分 |
| 構造規模 | 鉄筋コンクリート造(免震構造)、地下2階地上13階建て |
| 総戸数 | 69戸(賃貸戸数68戸) | 募集住戸 | 空室一覧よりご確認ください |
| 間取り | STUDIO~4Bed |
| 専有面積 | 42.53㎡~240.77㎡ |
| 竣工 | 2007年8月 |
| 契約形態 | 定期借家契約 4年 |
| 設計・監理 | 株式会社日建設計 |
| 施工 | 株式会社竹中工務店 |
| 駐車場 | 地下平面駐車18台 地下機械式駐車61台 |
| セキュリティ | 24時間有人管理、防犯カメラ、オートロックシステム、セコム |
| 備考 | ペット飼育相談 (中型犬・猫)、オール電化、住居兼事務所不可 |
| 貸主 | 株式会社ケン・プロパティマネジメント |
| 仲介 | 株式会社 ケン・コーポレーション TEL 0120-76-3219 |