一つの想いが、創り上げた

The Juban

麻布十番…この地に、純粋にいいものを創りたい。それがこの街の発展に繋がる。
この一つの想いが、創り上げた「The Juban」。次の世代へ継承する、新たなストーリーが始まる。


Concept

「麻布十番」を次の、
次の世代まで魅せる意匠

眺望

「都心の下町」麻布十番の街の成長を願う想い、建築技術を凝らした設計・施工、そしてケン・コーポレーションの「高級賃貸」としてのエッセンスを加えて誕生。
路面から大きくセットバックした建物配置・雨樋などの要素を隠し、輝くガラスバルコニーで彩る、「麻布十番に住みたい」という方の物件へのイメージに応え、魅せ続ける意匠の住まいです。

開放感と安心を確保する
「空間」×「構造」

設計

リビングからフラットに連続するバルコニーと、テーパーをかけた庇がハイサッシの窓から空間的な広がりを演出。さらに、約2.7m~2.8mの天井高を実現いたしました。バルコニーを取り囲む手摺面に配置されたガラスは内面との反射で部屋が広く見えるように反射性の高いフィルムが貼られています(~10階)。
また、高い耐震性を有する強耐震構造により、「耐震等級2」相当の耐震性能を確保しています。

時代とともに変化する街の中で
普遍的な「和の美意識」

インテリア

「木」×「石」

天然石を使用し、素材本来の風合いを活かした「麻布十番」に相応しいデザイン

「光」×「影」

室内を効果的に演出する間接照明・スポットライト
プライバシー性と開放感を両立するガラスバルコニー

STORY from KEN

バルコニー

成り立ち・工夫をさらに詳しく

「The Juban」が生まれるまで、そして目指すものについてのストーリーをより詳しく取材しました。「麻布十番に貢献、次世代に伝える建物」を実現するために奔走した、オーナー・企画・設計それぞれの視点で振り返ります。


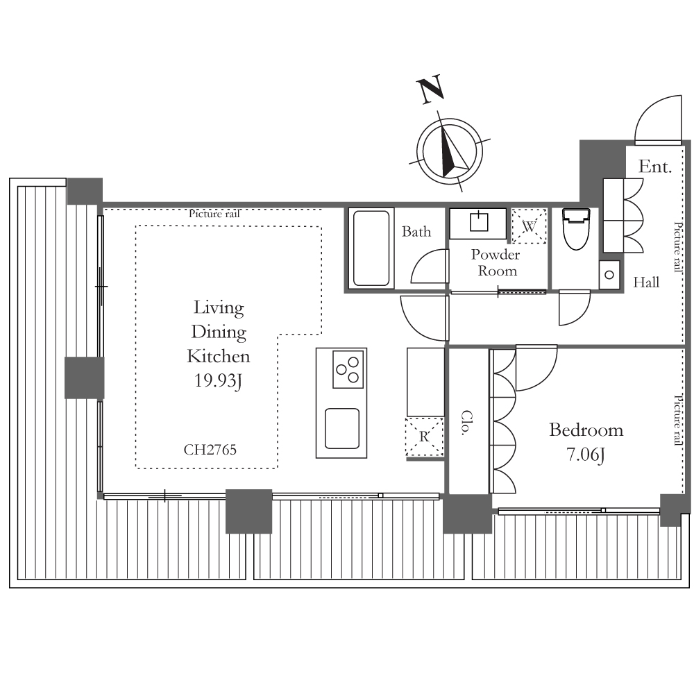
Plan

自由な空間を演出する設計の妙

プラン

2LDK 全4戸(11F-12F)

上層階ならではの眺望と開放感を最大限に享受することができるプラン
オーバーヘッドシャワー、洗面エアコンなどの生活をより快適にする設備

1LDK 全27戸(2F-9F)

ライフスタイルに応じて使い方を変えられる可変性の高いプラン(A&E type)
2面開口と広めの面積で開放的な生活を演出するプラン(D type)

Studio 全18戸(2F-9F)

コンパクトな住戸でも充実の設備(床暖房・浴室乾燥機)
家具を配置しやすいゆとりある間口設定


Equipment

日常を快適に過ごす、
きめ細やかに配慮された設備

Card image cap
オーブンレンジ Miele(ドイツ製)

※F・G type(写真 F type)

Card image cap
食器洗浄機 Miele(ドイツ製)

※D・F・G type(写真 F type)

Card image cap
浴室乾燥機

※ALL type(写真 A type)

Card image cap
シーリングファン

※D・F・G type(写真 G type)

Card image cap
床暖房

※ALL type(写真 G type)

「コンセントの位置」「エアコンの位置」「照明」など、単にお部屋として設計された際には見落とされがちな「あると良い基本設備」が配置されております。施工・企画そしてオーナーが住む人の目線でひとつひとつこだわり、追及しました。室内の洗練されたデザインを演出する間接照明やレールライトを基本設置、また上層階の2LDKタイプでは洗面所にもエアコンを配置するなど、様々な工夫がございます。


Access

国際色豊かな異国情緒溢れる街
『麻布十番』

地図

「The Juban」は、麻布十番広場から仙台坂方面に続く「雑式通り」の一画、マンションや店舗が建ち並ぶ界隈の南西角地に建つ高級賃貸マンションです。各国の大使館が立ち並び外国人富裕層が集う住宅街として洗練された立地であり、また「麻布十番商店街」は、江戸時代から続く商店街として情緒ある街の風景を醸成。下町らしさと都会らしさを謳歌することができる住まいです。


Outline

物件概要

名称 The Juban
所在地 東京都港区麻布十番2-12-10
交通 東京メトロ南北線・都営地下鉄大江戸線「麻布十番」駅 徒歩5分
東京メトロ日比谷線「六本木」駅 徒歩16分
都営地下鉄三田線「白金高輪」駅 徒歩17分
構造 鉄筋コンクリート造
規模 地上12階建
賃貸戸数 住宅総戸数/49戸 店舗/1階
間取り STUDIO ~ 2LDK
専有面積 31.65m² (9.57 坪) ~ 117.20m² (35.45 坪)
募集住戸 現在の募集住戸の賃料・諸条件については 空室一覧 よりご確認ください
駐車場 55,000円(税込)
ペット 相談
通学区域小学校 東町小学校(約400m)
竣工 2021年6月
商品企画 株式会社ケン・コーポレーション
設計・施工 大成建設株式会社
契約形態 3年(定期借家契約)
取引態様 媒介
情報更新日 2026年3月17日
※契約成立の場合、弊社に対して仲介手数料として賃料の1.1カ月分相当額のお支払いの承諾をお願いいたします。
※本サイト記載の金額のうち消費税課税となるものについては、支払時点で適用される税率により算出された金額でお支払い頂きますので、本サイト上の金額と、実際にお支払い頂く金額とが異なる場合があることを予めご了承ください。
※住宅に関する賃料・管理費は非課税です。
※当物件の入居者には借家人賠償保険に加入していただきます。
※契約に保証会社をご利用いただく場合には、保証会社との契約締結並びに保証委託料のお支払をいただきます。
※賃貸借契約が終了した場合、賃借人または居住者の使用状況や清掃状況にかかわらず、室内清掃(カーペット、壁、天井、建具及び設備機器を含む)費用を賃借人にご負担いただきます。
※携帯電話の受信状況は、実際にご使用される携帯電話で室内から通話確認をお願い致します。
※定期借家契約の場合の再契約についてはお問い合わせ下さい。尚、再契約が可能な場合は、別途再契約料等がかかります。
※間取図・方位・写真・内装仕様など、本サイトの記載概要と現況が異なる場合は現況を優先させていただきます。また、家具付き等の表示がある場合を除き、写真中の家具・調度品などは物件に含まれません。
※BS、CS、CATV等の各種放送の視聴の可否、視聴方法、料金形態、並びにインターネットの接続環境、料金形態は、物件別に異なりますので、各サービスの提供業者に直接ご確認下さるようお願いいたします。
※設備、施設は別途契約や利用料金がかかるものもございますのでご確認をお願いいたします。
※駐車場の空き状況についてはお問い合わせください。

ケン・コーポレーション ロゴ

株式会社ケン・コーポレーション 国内部

0120-512-234

東京都港区西麻布1-2-7 株式会社 ケン・コーポレーション 宅地建物取引業 国土交通大臣(8)第4372 号
TEL:03-5413-5678 FAX:03-5413-5670
Copyright © Ken Corporation Ltd. All rights reserved.