ROOM

お部屋のご紹介

芝浦アイランドブルームタワーには「SUPERIOR」「A to D ZONE」「CANAL COTTAGE」3つのゾーンがあり、さまざまなニーズにお答えできる計117タイプの間取りを取り揃えています。

バーチャルモデルルームを見る
お部屋写真例

SUPERIOR

40階以上に配された SUPERIOR の間取りは1LDKから3LDKまで。ワンランク上の設備仕様やこだわりの空間が、快適で優雅な都心ライフをご提供します。ここでは代表的なお部屋をご紹介します。※最新情報は空室一覧よりご確認ください。

IMAGES

芝浦アイランドブルームタワー
3LDK|154.69m²|S-07 type

40階以上のSUPERIORで採用されているローズウッド調のインテリアテイスト「ローズウォーター」のお部屋。40階、眺望自慢のモデルルームLDK。

芝浦アイランドブルームタワー
3LDK|154.69m²|S-07 type

フローリングと白い天井・壁、ヨーロピアンチェリー柄の扉とゴールドのレバーハンドルによるエレガントな対比を演出しています。夜バージョンのモデルルームLDK。

芝浦アイランドブルームタワー
3LDK|154.69m²|S-07 type

40階、モデルルーム。オーシャンビューのベッドルーム。

芝浦アイランドブルームタワー
3LDK|154.69m²|S-07 type

40階、モデルルーム。カウンター付きのキッチン。

芝浦アイランドブルームタワー
3LDK|154.69m²|S-07 type

40階、モデルルーム。2つのボウルを配し、ゆったり使えるパウダールーム。

芝浦アイランドブルームタワー
3LDK|154.69m²|S-07 type

40階、モデルルーム。窓のあるバスルーム。ほかにも窓付きのバスルームは多数ご用意があります。

芝浦アイランドブルームタワー
3LDK|154.69m²|S-07 type

40階、モデルルーム。トイレ。

芝浦アイランドブルームタワー
3LDK|154.69m²|S-07 type

40階、モデルルーム。ウォークインクローゼット。

芝浦アイランドブルームタワー
3LDK|154.69m²|S-07 type

40階、モデルルーム。玄関。

芝浦アイランドブルームタワー
芝浦アイランドブルームタワー
芝浦アイランドブルームタワー
芝浦アイランドブルームタワー
芝浦アイランドブルームタワー
芝浦アイランドブルームタワー
芝浦アイランドブルームタワー
芝浦アイランドブルームタワー
芝浦アイランドブルームタワー

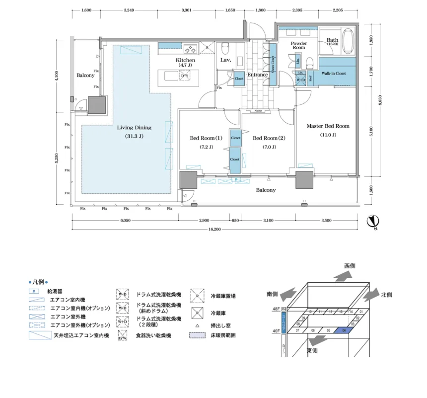
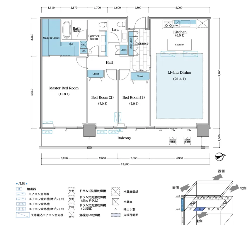
FLOOR PLANS

芝浦アイランドブルームタワー S-04 type 図面
3LDK+WiC | 133.05m² | S-04 type

Room Number : 4004/4104/4204/4304/4404/4504/4604/4704

芝浦アイランドブルームタワー S-05 type 図面
2LDK+WiC | 105.43m² | S-05 type

Room Number : 4005/4105/4205/4305/4405/4505/4605/4705

芝浦アイランドブルームタワー S-06 type 図面
3LDK+WiC | 124.68m² | S-06 type

Room Number : 4006/4106/4206/4306/4406/4506/4606/4706

芝浦アイランドブルームタワー S-08 type 図面
1LDK+Atelier+SIC | 73.09m² | S-08 type

Room Number : 4008/4108/4208/4308/4408/4508/4608/4708

芝浦アイランドブルームタワー S-09 type 図面
2LDK+WiC | 90.07m² | S-09 type

Room Number : 4009/4109/4209/4309/4409/4509/4609/4709

※ 間取図・方位・写真・内装仕様など、本サイトの記載概要と現況が異なる場合は現況を優先させていただきます。また、家具付き等の表示がある場合を除き、写真中の家具・調度品などは物件に含まれません。

芝浦アイランド
賃貸に関するお問合せ

株式会社
ケン・コーポレーション
銀座湾岸支店

東京都中央区勝どき3丁目3−7 ケン・メディアビル7F
TEL:0120-781-078
TEL:03-3534-3600