ROOM

お部屋のご紹介

エアタワーの間取は、40階以上のプレミアタイプと39階以下のスタンダードタイプとに大きく分かれ、それぞれに1BED~3BED、合計67もの数がそろっています。

バーチャルモデルルームを見る
お部屋写真例

PREMIER

ワンランク上の設備仕様やこだわりの空間が、快適で優雅な都心ライフをご提供します。代表的なお部屋の写真と間取図のご紹介です。※最新情報は下部「SEARCH」ボタンよりご確認ください。

IMAGES

芝浦アイランドエアタワー LDK
3LDK|177.05m²|PH-5type

48階最上階のLDK。ゆとりの広さ・眺望に、特別なこだわりを持つ方のための邸宅です。

芝浦アイランドエアタワー リビング
3LDK|177.05m²|PH-5type

レインボーブリッジを間近に望む開放的なリビング。

芝浦アイランドエアタワー インテリア
3LDK|177.05m²|PH-5type

贅沢な大人の時間を演出するプレミアムなインテリア。

芝浦アイランドエアタワー マスターベッドルーム
3LDK|177.05m²|PH-5type

マスターベッドルーム。

芝浦アイランドエアタワー パウダールーム
3LDK|177.05m²|PH-5type

2つのボウルを配し、ゆったり使えるパウダールーム。

芝浦アイランドエアタワー バスルーム
3LDK|177.05m²|PH-5type

窓のあるバスルーム。ほかにも窓付きのバスルームは多数ご用意があります。

芝浦アイランドエアタワー ウォークインクローゼット
3LDK|177.05m²|PH-5type

ウォークインクローゼット。

芝浦アイランドエアタワー 眺望
3LDK|177.05m²|PH-5type

お部屋からの眺望。東京タワービューのお部屋やオーシャンビューのお部屋をご用意しています。

芝浦アイランドエアタワー
芝浦アイランドエアタワー
芝浦アイランドエアタワー
芝浦アイランドエアタワー
芝浦アイランドエアタワー
芝浦アイランドエアタワー
芝浦アイランドエアタワー
芝浦アイランドエアタワー
芝浦アイランドエアタワー

FLOOR PLANS

芝浦アイランドエアタワー P-02type図面
1LDK<View Bath> | 77.75m² | P-02type

所在階数:40階~47階、方位:西

芝浦アイランドエアタワー P-03type図面
2LDK | 90.54m² | P-03type

所在階数:40階~47階、方位:西

芝浦アイランドエアタワー P-06type図面
2LDK | 104.74m² | P-06type

所在階数:40階~47階、方位:北

芝浦アイランドエアタワー
2LDK+WIC+SIC<View Bath> | 106.27m² | P-05type

所在階数:40階~47階、方位:北

芝浦アイランドエアタワー P-01type図面
2LDK+PANTRY | 107.34m² | P-01type

所在階数:40階~47階、方位:南

芝浦アイランドエアタワー P-11type図面
2LDK | 111.87m² | P-11type

所在階数:40階~47階、方位:南

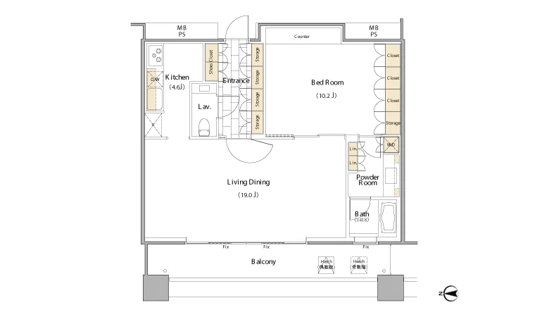
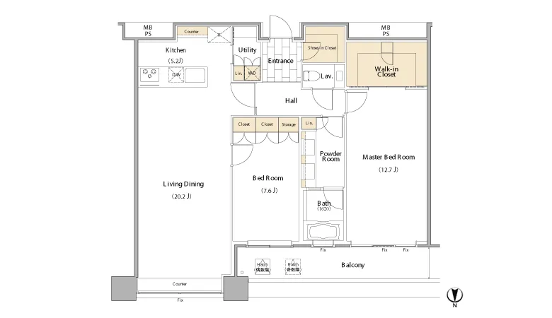
芝浦アイランドエアタワー PH-04type図面
2LDK+WIC | 90.54m² | PH-04type

所在階数:48階(最上階)、方位:北

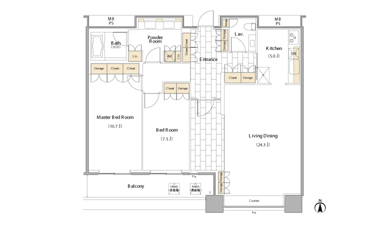
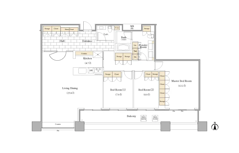
芝浦アイランドエアタワー P-08type図面
3LDK+WIC | 116.60m² | P-08type

所在階数:40階~47階、方位:東

芝浦アイランドエアタワー P-07type図面
3LDK | 124.00m² | P-07type

所在階数:40階~47階、方位:北

芝浦アイランドエアタワー P-10type図面
3LDK | 133.09m² | P-10type

所在階数:40階~47階、方位:南

芝浦アイランドエアタワー P-04type図面
3LDK+WIC | 141.51m² | P-04type

所在階数:40階~47階、方位:西

芝浦アイランドエアタワー PH-7type図面
3LDK+WIC | 165.40m² | PH-7type

所在階数:48階(最上階)、方位:南

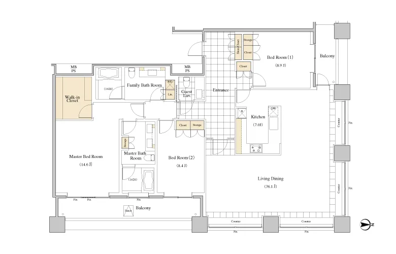
芝浦アイランドエアタワー P-09type図面
3LDK+WIC | 169.12m² | P-09type

所在階数:40階~47階、方位:東

芝浦アイランドエアタワー PH-1type図面
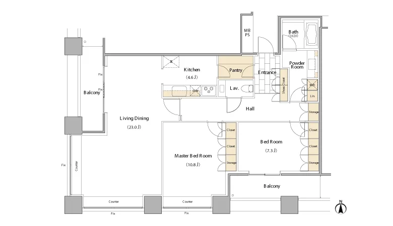
3LDK+WIC+PANTRY | 174.01m² | PH-1type

所在階数:48階(最上階)、方位:南

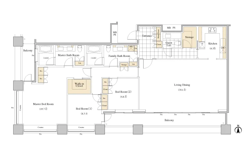
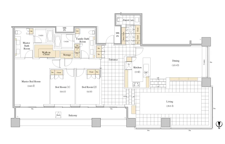
芝浦アイランドエアタワー PH-5type図面
3LDK+WIC | 177.05m² | PH-5type

所在階数:48階(最上階)、方位:東

芝浦アイランドエアタワー PH-2type図面
3LDK+WIC+UTILITY | 181.39m² | PH-2type

所在階数:48階(最上階)、方位:西

芝浦アイランドエアタワー PH-3type図面
3LDK+WIC+PANTRY | 194.71m² | PH-3type

所在階数:48階(最上階)、方位:北

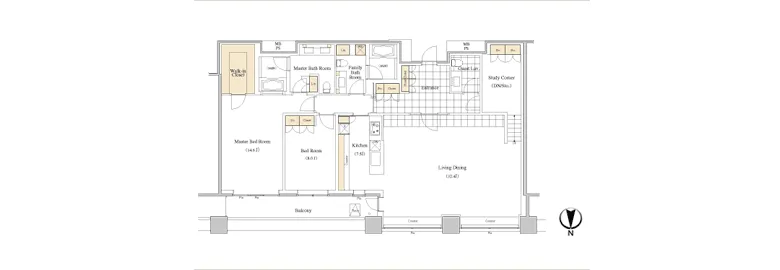
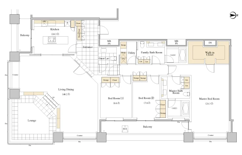
芝浦アイランドエアタワー PH-6type図面
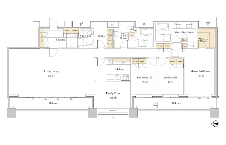
3LDK+WIC+U | 225.03m² | PH-6type

所在階数:48階(最上階)、方位:東

※ 間取図・方位・写真・内装仕様など、本サイトの記載概要と現況が異なる場合は現況を優先させていただきます。また、家具付き等の表示がある場合を除き、写真中の家具・調度品などは物件に含まれません。

芝浦アイランド
賃貸に関するお問合せ

株式会社
ケン・コーポレーション
銀座湾岸支店

東京都中央区勝どき3丁目3−7 ケン・メディアビル7F
TEL:0120-781-078
TEL:03-3534-3600