ROOM

お部屋のご紹介

エアタワーの間取は、40階以上のプレミアタイプと39階以下のスタンダードタイプとに大きく分かれ、それぞれに1BED~3BED、合計67もの数がそろっています。

バーチャルモデルルームを見る
お部屋写真例

STANDARD

シングルからカップル、ファミリーまで、それぞれのライフステージに合った間取を豊富にご用意しています。代表的なお部屋の写真と間取図のご紹介です。※最新情報は下部「SEARCH」ボタンよりご確認ください。

IMAGES

芝浦アイランドエアタワー リビングダイニング
3LDK|80.72m²|N80-E type

32階「Pure White(ピュアホワイト)」タイプのリビングダイニング。シャープかつフレッシュな印象。洗練された都心生活を演出します。

芝浦アイランドエアタワー リビングダイニング
3LDK|80.72m²|N80-E type

リビングダイニング。

芝浦アイランドエアタワー リビングダイニング
3LDK|80.72m²|N80-E type

リビングダイニング。

芝浦アイランドエアタワー キッチン
3LDK|80.72m²|N80-E type

キッチン。

芝浦アイランドエアタワー ベッドルーム
3LDK|80.72m²|N80-E type

ベッドルーム。

芝浦アイランドエアタワー 眺望
3LDK|80.72m²|N80-E type

眺望。

芝浦アイランドエアタワー
芝浦アイランドエアタワー
芝浦アイランドエアタワー
芝浦アイランドエアタワー
芝浦アイランドエアタワー
芝浦アイランドエアタワー

FLOOR PLANS

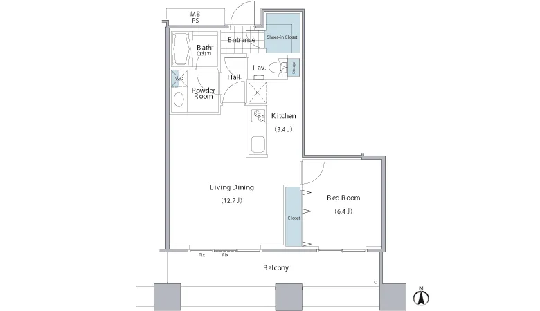
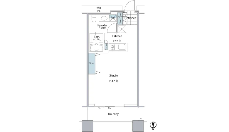
芝浦アイランドエアタワー N40-A type図面
STUDIO | 37.15m² | N40-A type

所在階数:3階~25階、方位:北

芝浦アイランドエアタワー S50-B type図面
1LDK+SIC | 52.17m² | S50-B type

所在階数:3階~17階、方位:南

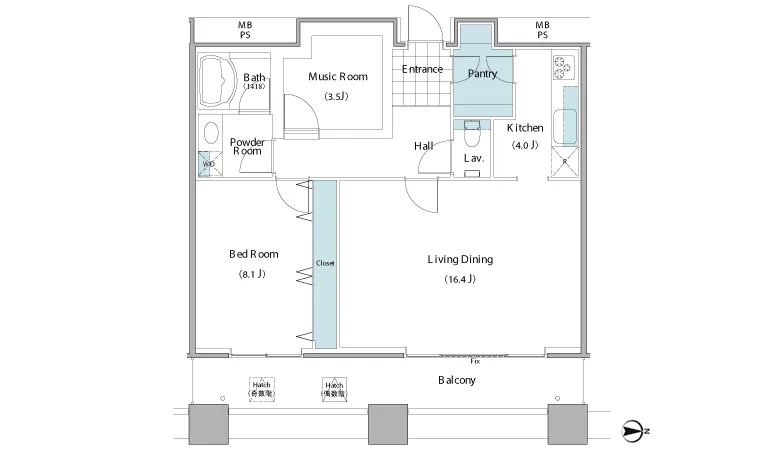
芝浦アイランドエアタワー E80-D type図面
1LDK+MUSIC ROOM+PANTRY | 76.63m² | E80-D type

所在階数:34階~39階、方位:東

芝浦アイランドエアタワー W60-A type図面
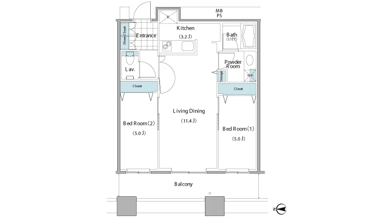
2LDK | 55.09m² | W60-A type

所在階数:3階~17階、方位:西

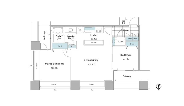
芝浦アイランドエアタワー N70-B type図面
2LDK<View Bath> | 70.11m² | N70-B type

所在階数:18階~33階、方位:北東

芝浦アイランドエアタワー N80-E type図面
3LDK | 80.72m² | N80-E type

所在階数:18階~33階、方位:南東

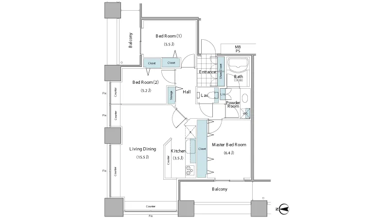
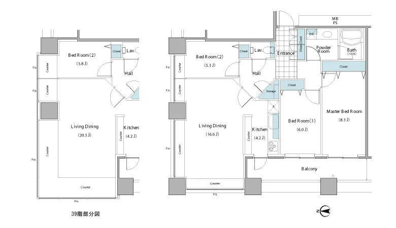
芝浦アイランドエアタワー N90-B type図面
3LDK | 90.10m² | N90-B type

所在階数:34階~38階、方位:北西

※ 間取図・方位・写真・内装仕様など、本サイトの記載概要と現況が異なる場合は現況を優先させていただきます。また、家具付き等の表示がある場合を除き、写真中の家具・調度品などは物件に含まれません。

芝浦アイランド
賃貸に関するお問合せ

株式会社
ケン・コーポレーション
銀座湾岸支店

東京都中央区勝どき3丁目3−7 ケン・メディアビル7F
TEL:0120-781-078
TEL:03-3534-3600