お問い合わせ

戻る

高級賃貸住宅

創業から「外国人エグゼクティブ向け賃貸」にこだわり、都心で「いい部屋」を探される方に洗練されたホスピタリティと質の高い「高級賃貸」仲介サービスを提供して参りました。優れたチームワークと「高級賃貸専門」というプロフェッショナリズムで理想のお部屋探しをサポートします。

閉じる

戻る

住宅購入

VIPクラスのお客様との交流を通じ、洗練されたホスピタリティと質の高い売買仲介サービスを提供して参りました。高級物件のオーナー様から多数の物件を専任でご依頼いただくなど、公開・非公開を合わせ業界トップクラスの高級住宅取扱い数を誇ります。

閉じる

戻る

住宅の賃貸募集・管理

変動が激しい都市部マーケットにおいて、長年培ってきた膨大なデータと経験やノウハウをもとに、オーナー様の「貸したい」「管理してほしい」をトータルでサポートします。

閉じる

戻る

住宅・土地の売却

変動が激しい都市部マーケットにおいて、長年培ってきた膨大なデータと経験やノウハウをもとに、オーナー様の住宅・土地の売却をトータルでサポートします。

閉じる

戻る

賃貸オフィス

賃貸オフィスを探しているテナント様のために、物件のご紹介から条件交渉、契約締結、移転まで、きめ細やかにサポートします。外資系法人の仲介実績も多くあります。

閉じる

戻る

事業・投資用不動産

個人・企業を問わず都心の高級物件のオーナー様より多くの物件を専任でご依頼いただいています。そのため、事業用地、投資用収益物件に加え、自社ビルや社宅等の多彩な物件をご紹介できます。

閉じる

戻る

賃貸企画・経営

都心の高級不動産に特化することにより培った高い専門性と実績により、高い収益性と安定稼働を実現する賃貸住宅の企画・経営をオーダーメイドにてご提供します。

閉じる

戻る

ビル運営管理

都心のマーケット動向を的確に把握した上で、管理コストの適正化や資産の維持、バリューアップなどオーナー様のビル運営管理をトータルにサポートします。

閉じる

戻る

不動産売却

変動が激しい都市部のマーケットにおいて、長年培ってきた膨大なデータと経験やノウハウをもとに、法人のオーナー様の不動産売却をトータルでサポートします。

閉じる

戻る

不動産開発

タワー型大規模賃貸マンションをはじめ戸建・オフィス・国内外ホテルなど幅広い不動産開発のプロジェクトマネジメント業務を行っています。​

閉じる

戻る

ケン・コーポレーション グループ

不動産事業に加え、ホテル事業(株式会社ケン・ホテル&リゾートホールディングス)・太陽光発電事業・エンターテイメント等の文化事業を手掛けています。

閉じる

戻る

ケン・コーポレーション

都心の高級賃貸・高級住宅を専門に取り扱う総合不動産会社として、独自のネットワークと創業40年以上の実績とノウハウを活かし、お客様のニーズを実現するサービスをご提供します。

閉じる

LA SANTE AZABUJUBAN

LaSante麻布十番 16階 1LDK

  • 居室(LDなど)
  • 居室(LDなど)
  • ベッドルーム
  • キッチン
  • キッチン
  • パウダールーム
  • バスルーム
  • トイレ
  • クローゼット
  • バルコニー
  • 眺望(居室から)
  • 玄関
  •  外観ひき
  •  外観ひき
  •  外観ひき
  •  外観より
  •  外観より
  •  オートロック
  •  エントランス
  •  エントランス
  •  駐車場
  •  駐車場
  •  駐輪場
  •  郵便受け・宅配ボックス
01

部屋情報

賃貸

住所 港区麻布十番3
交通/駅徒歩* 南北線 麻布十番駅 徒歩2分
都営大江戸線 麻布十番駅 徒歩2分
日比谷線 広尾駅 徒歩20分
賃料 / 管理費 489,000円 / 10,000円
敷金 / 礼金 1ヶ月 / 1ヶ月
償却 / 更新料 無 / 無
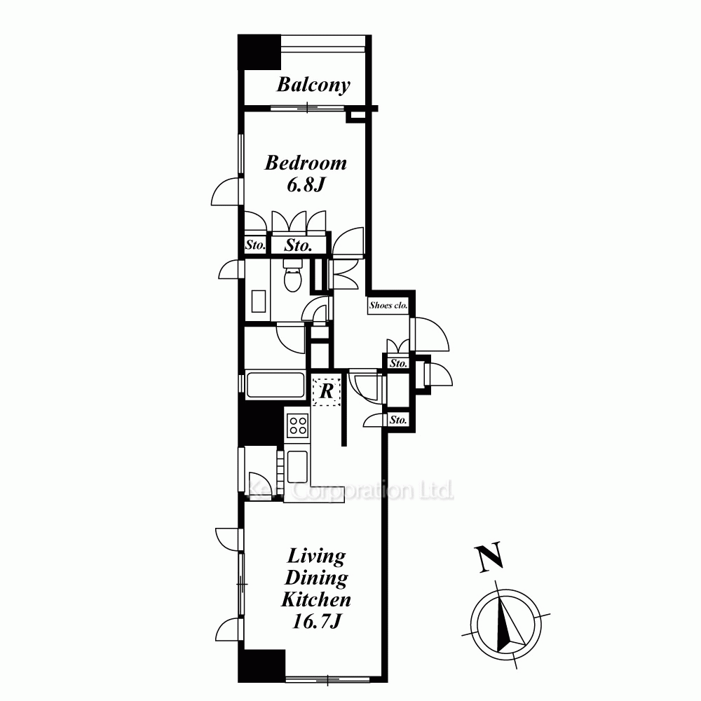
間取り / 方位 1LDK / 西
専有面積 53.86㎡ (16.29坪)
バルコニー関連 バルコニー(5.91㎡)
階建 / 所在階 地上17階 地下1階建 / 16階部分
構造 / 総戸数 鉄筋コンクリート造 / 59戸
竣工 2007年8月
入居可能日 2026年5月下旬 予定
駐輪場・バイク置き場 駐輪場有り 無料。■最新の空区画情報、料金等はお問い合わせ下さい。、 バイク置き場有り 有料。■最新の空区画情報、料金等はお問い合わせ下さい。
通学区域小学校 東町小学校(約400m)
契約形態 定期借家契約
契約期間(期日) 2年
入居諸条件 ペット不可、 住居兼事務所不可、 保証会社必須
備考 ■退去時:清掃費・エアコン清掃費150,642円■入居時:鍵交換代38,500円■保証会社必須。【月次型】初回保証料:契約時月額賃料等の40%、継続保証料:毎月月額賃料等の1%(※保証委託最低金額 初回5万円、継続 月次1000円)。【年次型】初回保証料:契約時月額賃料等の50%、継続保証料:毎年1万円。※契約型は保証会社による。
情報更新日 2026年4月13日
次回更新予定日 2026年4月27日

*「交通/駅徒歩」とは、当該物件の最寄駅(路線)、バス停、およびそこまでの徒歩所要時間を表示します。

この物件についてお問い合わせ
  • 1

    入力

  • 2

    確認

  • 3

    完了

ご相談内容

必須

お名前

必須

フリガナ(全角カタカナ)

必須

電話番号

必須

プライバシーポリシー にご同意の上、「同意して確認ページへ進む」ボタンを押してください。

FEATURE

特徴・おすすめポイント

  • オート
    ロック

  • 宅配ボックス

【お部屋について】

麻布十番という日常利便性が高く名店も数多いエリアにあって、賑わいから一歩入った閑静な地に立地しています。間接照明を活かした落ち着きのあるエントランス。

【LaSante麻布十番について】

麻布十番駅徒歩2分という好立地。上品な外観のタワー型マンション。全住戸が角住戸なので、広々とした開口部から光をたっぷり取り入れられる開放感溢れるプランが揃っています。カラーテイストはブラウン系のアーバンカラーとホワイト系のナチュラルカラー、最上階のみプレミアタイプのペントハウスです。上層階の住戸からは都心の眺めを楽しめます。

特徴 デザイナーズ物件、 バルコニー、 2面採光
部屋設備 エアコン、 給湯、 室内洗濯機置場、 浴室乾燥機、 バストイレ別、 洗面所独立、 シューズクローゼット、 コンロ4口、 CATV、 ネット使用料不要、 ■インターネット使用料不要※つなぐネット限定
建物設備・施設 エレベーター、 宅配ボックス、 敷地内ゴミ置場、 オートロック、 TVモニター付きインターホン、 防犯カメラ

LaSante麻布十番
建物詳細

マップ

この物件についてお問い合わせ

  • 1

    入力

  • 2

    確認

  • 3

    完了

ご相談内容

必須

お名前

必須

フリガナ(全角カタカナ)

必須

電話番号

必須

プライバシーポリシーにご同意の上、「同意して確認ページへ進む」ボタンを押してください。

お問い合わせ

物件番号 2007080964

※お電話でお問い合わせの場合は「ホームページを見て」とお伝えください。

お問い合わせ・内覧予約


外資系企業の総務人事部・パートナーが外国人の方へ

ケン・コーポレーション 外国部が、物件案内・商談・契約の際、英語にてサポートいたします。

この建物の他の物件






  • 契約成立の場合、弊社に対して仲介手数料として賃料の1.1カ月分相当額のお支払いの承諾をお願いいたします。
  • 間取り表記の詳細:数字=「居室数」、L=「リビングルーム」、D=「ダイニングルーム」、K=「キッチン」、S=「サービスルーム」、F=「ファミリールーム」を指します。
  • 本サイト記載の金額のうち消費税課税となるものについては、支払時点で適用される税率により算出された金額でお支払い頂きますので、本サイト上の金額と、実際にお支払い頂く金額とが異なる場合があることを予めご了承ください。
  • 住宅に関する賃料・管理費は非課税です。
  • 当物件の入居者には借家人賠償保険に加入していただきます。
  • 契約に保証会社をご利用いただく場合には、保証会社との契約締結並びに保証委託料のお支払をいただきます。
  • 賃貸借契約が終了した場合、賃借人または居住者の使用状況や清掃状況にかかわらず、室内清掃(カーペット、壁、天井、建具及び設備機器を含む)費用を賃借人にご負担いただきます。
  • 携帯電話の受信状況は、実際にご使用される携帯電話で室内から通話確認をお願い致します。
  • 定期借家契約の場合の再契約についてはお問い合わせ下さい。尚、再契約が可能な場合は、別途再契約料等がかかります。
  • 間取図・方位・写真・内装仕様など、本サイトの記載概要と現況が異なる場合は現況を優先させていただきます。また、家具付き等の表示がある場合を除き、写真中の家具・調度品などは物件に含まれません。
  • BS、CS、CATV等の各種放送の視聴の可否、視聴方法、料金形態、並びにインターネットの接続環境、料金形態は、物件別に異なりますので、各サービスの提供業者に直接ご確認下さるようお願いいたします。
  • 設備、施設は別途契約や利用料金がかかるものもございますのでご確認をお願いいたします。
  • 駐車場の空き状況についてはお問い合わせください。
  • 小学校までの道のりはGoogleマップを利用して算出しており、実際の道のりと異なる場合があります。
  • 本サイトにおける小学校区は、各自治体より出されている学区データを基に表示したものであり、該当小学校区を保証するものではありません。最新の小学校区に関しましては、各自治体へ直接ご確認ください。
  • 掲載している物件が万が一成約の際はご了承ください。
  • 東京都港区西麻布1-2-7 株式会社 ケン・コーポレーション 宅地建物取引業 国土交通大臣 (8) 第4372 号 取引態様:仲介

この建物にお問い合わせ

ご希望の内容をお選びください。

閉じる

オーナー様は下記より
お問い合わせください

共有方法を選択してください

閉じる

  1. HOME
  2. 住まい
  3. 住まいを探す
  4. 高級賃貸住宅
  5. LaSante麻布十番
  6. LaSante麻布十番 16階 1LDK