戻る
住まい
RENT / BUY
- 借りる
- 買う
LEASE / SELL
- 貸す
- 売る
戻る
住まい
RENT / BUY
LEASE / SELL
戻る
オフィス
戻る
事業用不動産
CONSULT
戻る
企業・グループ情報
戻る
高級賃貸住宅
創業から「外国人エグゼクティブ向け賃貸」にこだわり、都心で「いい部屋」を探される方に洗練されたホスピタリティと質の高い「高級賃貸」仲介サービスを提供して参りました。優れたチームワークと「高級賃貸専門」というプロフェッショナリズムで理想のお部屋探しをサポートします。
閉じる
戻る
住宅購入
VIPクラスのお客様との交流を通じ、洗練されたホスピタリティと質の高い売買仲介サービスを提供して参りました。高級物件のオーナー様から多数の物件を専任でご依頼いただくなど、公開・非公開を合わせ業界トップクラスの高級住宅取扱い数を誇ります。
閉じる
戻る
住宅の賃貸募集・管理
変動が激しい都市部マーケットにおいて、長年培ってきた膨大なデータと経験やノウハウをもとに、オーナー様の「貸したい」「管理してほしい」をトータルでサポートします。
閉じる
戻る
住宅・土地の売却
変動が激しい都市部マーケットにおいて、長年培ってきた膨大なデータと経験やノウハウをもとに、オーナー様の住宅・土地の売却をトータルでサポートします。
閉じる
戻る
賃貸オフィス
賃貸オフィスを探しているテナント様のために、物件のご紹介から条件交渉、契約締結、移転まで、きめ細やかにサポートします。外資系法人の仲介実績も多くあります。
閉じる
戻る
事業・投資用不動産
個人・企業を問わず都心の高級物件のオーナー様より多くの物件を専任でご依頼いただいています。そのため、事業用地、投資用収益物件に加え、自社ビルや社宅等の多彩な物件をご紹介できます。
閉じる
戻る
賃貸企画・経営
都心の高級不動産に特化することにより培った高い専門性と実績により、高い収益性と安定稼働を実現する賃貸住宅の企画・経営をオーダーメイドにてご提供します。
閉じる
戻る
ビル運営管理
都心のマーケット動向を的確に把握した上で、管理コストの適正化や資産の維持、バリューアップなどオーナー様のビル運営管理をトータルにサポートします。
閉じる
戻る
不動産売却
変動が激しい都市部のマーケットにおいて、長年培ってきた膨大なデータと経験やノウハウをもとに、法人のオーナー様の不動産売却をトータルでサポートします。
閉じる
戻る
不動産開発
タワー型大規模賃貸マンションをはじめ戸建・オフィス・国内外ホテルなど幅広い不動産開発のプロジェクトマネジメント業務を行っています。
閉じる
戻る
ケン・コーポレーション グループ
不動産事業に加え、ホテル事業(株式会社ケン・ホテル&リゾートホールディングス)・太陽光発電事業・エンターテイメント等の文化事業を手掛けています。
閉じる
戻る
ケン・コーポレーション
都心の高級賃貸・高級住宅を専門に取り扱う総合不動産会社として、独自のネットワークと創業40年以上の実績とノウハウを活かし、お客様のニーズを実現するサービスをご提供します。
閉じる
部屋情報
賃貸
| 住所 | 中央区築地7 |
|---|---|
| 交通/駅徒歩* |
有楽町線 新富町駅 徒歩7分 日比谷線 築地駅 徒歩6分 都営浅草線 東銀座駅 徒歩12分 都営大江戸線 築地市場駅 徒歩12分 |
| 賃料 / 管理費 | 356,000円 / 15,000円 |
| 敷金 / 礼金 | 1ヶ月 / 無 |
| 償却 / 更新料 | 無 / 1ヶ月 |
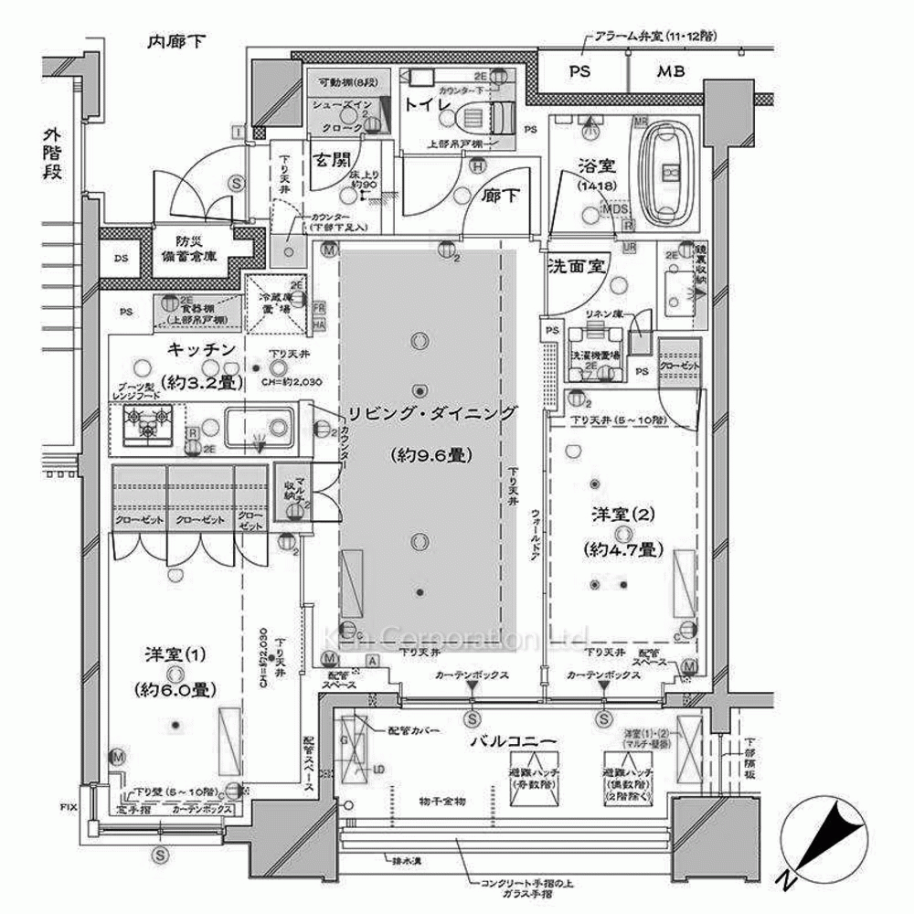
| 間取り / 方位 | 2LDK / 北西 |
| 専有面積 | 55.38㎡ (16.75坪) |
| バルコニー関連 | バルコニー(7㎡) |
| 階建 / 所在階 | 地上12階建 / 6階部分 |
| 構造 / 総戸数 | 鉄筋コンクリート造 / 55戸 |
| 竣工 | 2021年3月 |
| 入居可能日 | 2026年4月下旬 予定 |
| 駐輪場・バイク置き場 | 駐輪場有り 1住戸1台まで(無料)要空き確認 |
| 通学区域小学校 |
明石小学校(約400m) |
| 契約形態 | 普通借家契約 |
| 契約期間(期日) | 2年 |
| 入居諸条件 | ペット相談(小型犬または猫1匹まで。敷金1ヶ月積み増し。)、 住居兼事務所不可、 保証会社必須 |
| 備考 | ■鍵交換費用が別途発生致します。■口座振替事務手数料が別途発生致します。■ペット飼育時敷金1ヶ月積増になります。■保証会社必須。【月次型】初回保証料:契約時月額賃料等の40%、継続保証料:毎月月額賃料等の1%(※保証委託最低金額 初回5万円、継続 月次1000円)。【年次型】初回保証料:契約時月額賃料等の50%、継続保証料:毎年1万円。※契約型は保証会社による。 |
| 情報更新日 | 2026年4月13日 |
| 次回更新予定日 | 2026年4月27日 |
*「交通/駅徒歩」とは、当該物件の最寄駅(路線)、バス停、およびそこまでの徒歩所要時間を表示します。
FEATURE
オート
ロック
宅配ボックス
ペット
相談
床暖房
【お部屋について】
築地駅から隅田川方面へ徒歩5分(約400m)の賃貸。浄水器・食器洗い乾燥機・3口ガスコンロ、無料インターネットなどの設備が揃い、ペットの飼育が相談可能です。
【オーパスレジデンス銀座イーストについて】
オーパスレジデンス銀座イーストは築地駅から隅田川方面へ約400m、12階建ての賃貸マンションです。総戸数55戸の間取りは1LDK~2LDKで、オートロック・浄水器・食器洗い乾燥機・3口ガスコンロ、無料インターネットなどの設備が揃います。ペットの飼育が相談可能で、近隣には築地川公園(約260m)、あかつき公園(約110m)、はとば公園(約220m)があります。
| 特徴 | バルコニー、 床暖房 |
|---|---|
| 部屋設備 | エアコン、 給湯、 室内洗濯機置場、 浴室乾燥機、 追焚、 バストイレ別、 洗面所独立、 クローゼット、 シューズインクローゼット、 シューズクローゼット、 グリル付き、 コンロ3口、 食洗機、 CATV、 BS、 CS |
| 建物設備・施設 | エレベーター、 宅配ボックス、 オートロック、 TVモニター付きインターホン、 防犯カメラ、 日勤管理 |
1
入力
2
確認
3
完了
お問い合わせ
物件番号 2021020115
外資系企業の総務人事部・パートナーが外国人の方へ

5階
354,000円 (管理費 : 15,000円)
55.96㎡ / 2LDK

6階
359,000円 (管理費 : 15,000円)
55.96㎡ / 2LDK

7階
360,000円 (管理費 : 15,000円)
55.96㎡ / 2LDK

4階
350,000円 (管理費 : 15,000円)
54.36㎡ / 2LDK+WIC

11階
354,000円 (管理費 : 15,000円)
55.38㎡ / 2LDK+SIC

7階
357,000円 (管理費 : 15,000円)
55.38㎡ / 2LDK

2階
350,000円 (管理費 : 15,000円)
55.38㎡ / 2LDK+SIC