お問い合わせ

戻る

住宅賃貸

創業から「外国人エグゼクティブ向け賃貸」にこだわり、都心で「いい部屋」を探される方に洗練されたホスピタリティと質の高い「高級賃貸」仲介サービスを提供して参りました。優れたチームワークと「高級賃貸専門」というプロフェッショナリズムで理想のお部屋探しをサポートします。

閉じる

戻る

住宅購入

VIPクラスのお客様との交流を通じ、洗練されたホスピタリティと質の高い売買仲介サービスを提供して参りました。高級物件のオーナー様から多数の物件を専任でご依頼いただくなど、公開・非公開を合わせ業界トップクラスの高級住宅取扱い数を誇ります。

閉じる

戻る

住宅の賃貸募集・管理

変動が激しい都市部マーケットにおいて、長年培ってきた膨大なデータと経験やノウハウをもとに、オーナー様の「貸したい」「管理してほしい」をトータルでサポートします。

INDEX

閉じる

戻る

住宅・土地の売却

変動が激しい都市部マーケットにおいて、長年培ってきた膨大なデータと経験やノウハウをもとに、オーナー様の住宅・土地の売却をトータルでサポートします。

INDEX

閉じる

戻る

賃貸オフィス

賃貸オフィスを探しているテナント様のために、物件のご紹介から条件交渉、契約締結、移転まで、きめ細やかにサポートします。外資系法人の仲介実績も多くあります。

閉じる

戻る

事業・投資用不動産

個人・企業を問わず都心の高級物件のオーナー様より多くの物件を専任でご依頼いただいています。そのため、事業用地、投資用収益物件に加え、自社ビルや社宅等の多彩な物件をご紹介できます。

閉じる

戻る

賃貸企画・経営

都心の高級不動産に特化することにより培った高い専門性と実績により、高い収益性と安定稼働を実現する賃貸住宅の企画・経営をオーダーメイドにてご提供します。

閉じる

戻る

ビル運営管理

都心のマーケット動向を的確に把握した上で、管理コストの適正化や資産の維持、バリューアップなどオーナー様のビル運営管理をトータルにサポートします。

閉じる

戻る

不動産売却

変動が激しい都市部のマーケットにおいて、長年培ってきた膨大なデータと経験やノウハウをもとに、法人のオーナー様の不動産売却をトータルでサポートします。

閉じる

戻る

不動産開発

タワー型大規模賃貸マンションをはじめ戸建・オフィス・国内外ホテルなど幅広い不動産開発のプロジェクトマネジメント業務を行っています。​

閉じる

戻る

ケン・コーポレーション グループ

不動産事業に加え、ホテル事業(プレミアホテルグループ)・太陽光発電事業・エンターテイメント等の文化事業を手掛けています。

閉じる

戻る

ケン・コーポレーション

都心の高級賃貸・高級住宅を専門に取り扱う総合不動産会社として、独自のネットワークと創業40年以上の実績とノウハウを活かし、お客様のニーズを実現するサービスをご提供します。

閉じる

三徳日本橋ビルの賃貸オフィス情報

  • 三徳日本橋ビル 外観
  • 三徳日本橋ビル 外観
  • 三徳日本橋ビル 外観
  • 三徳日本橋ビル 外観
  • 三徳日本橋ビル 外観
  • 三徳日本橋ビル 外観
  • 三徳日本橋ビル 外観
  • 三徳日本橋ビル 外観
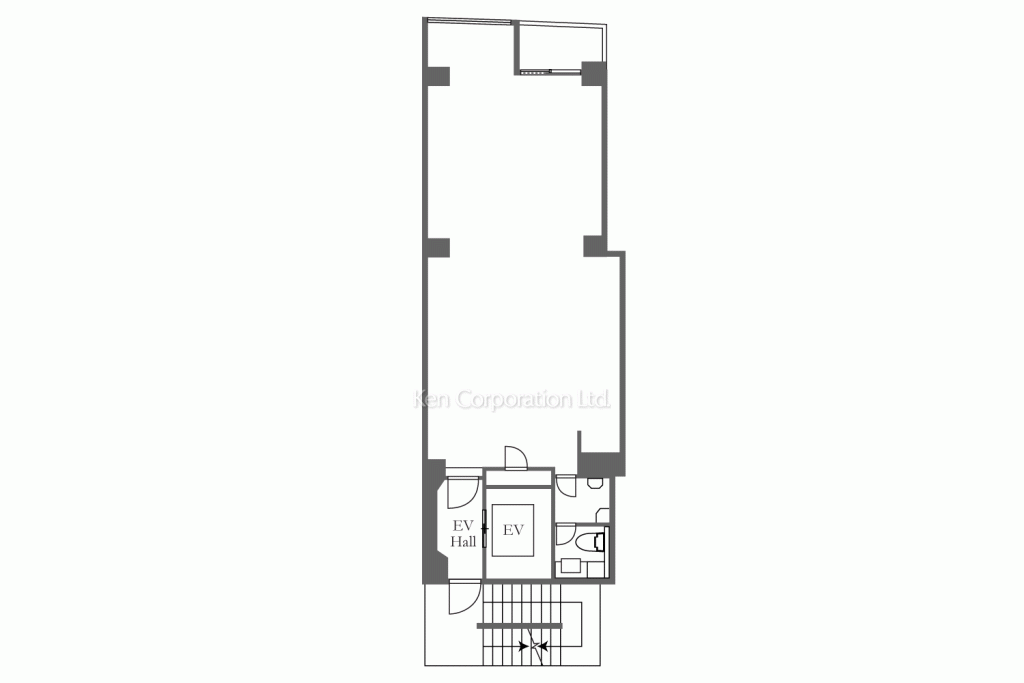
  • 三徳日本橋ビル 基準階図面 ※該当の募集とは仕様が異なることがあります。
  • 三徳日本橋ビル
  • 三徳日本橋ビル
  • 三徳日本橋ビル
  • 三徳日本橋ビル
  • 三徳日本橋ビル
  • 三徳日本橋ビル
  • 三徳日本橋ビル
  • 三徳日本橋ビル
  • 三徳日本橋ビル

三徳日本橋ビルの建物情報

住所 中央区日本橋室町4-2-9
交通/駅徒歩 * 銀座線 三越前駅 徒歩5分
銀座線 神田駅 徒歩4分
総武線 新日本橋駅 徒歩3分
階数 地上10階 地下1階
構造 鉄骨造
竣工 1987年5月
情報更新日 2025年9月19日

*「交通/駅徒歩」とは、当該物件の最寄駅(路線)、バス停、およびそこまでの徒歩所要時間を表示します。

賃貸

募集中フロア区画: 0

  • 現在、募集中のお部屋はありません。

ABOUT

三徳日本橋ビルについて

三徳日本橋ビルの設備詳細

  • 新耐震基準

JR総武線「新日本橋駅」徒歩1分(80m)の駅近物件。室内はフリーアクセスフロア・光ファイバーとネット環境もとても充実しております。新耐震基準のオフィスビルなので、企業のBCP対策もとても向いております。また個別空調なので、いろいろな業態に対応可能。

三徳日本橋ビルの空室確認・内覧に関するお問い合わせ

建物番号 129189

0120-081-466 03-5413-5611

オフィス ビル営業部(マップ)

※お電話でお問い合わせの場合は「ホームページを見て」とお伝えください。

お問い合わせ・内覧予約

上記一覧以外に新たに募集開始した場合にご案内をお送りいたします。

空室お知らせメール登録

この物件を共有

三徳日本橋ビルの周辺地図

※物件の所在地付近を表すものであり、実際の所在地とは異なる場合がございます。



三徳日本橋ビルの近隣の駅から賃貸オフィス物件を探す

  • 東京都港区西麻布1-2-7 株式会社 ケン・コーポレーション 宅地建物取引業 国土交通大臣 (8) 第4372 号 取引態様:仲介

共有方法を選択してください

閉じる

  1. HOME
  2. オフィス
  3. 賃貸オフィス・貸事務所
  4. 中央区
  5. 三越前駅
  6. 三徳日本橋ビル