お問い合わせ

戻る

住宅賃貸

創業から「外国人エグゼクティブ向け賃貸」にこだわり、都心で「いい部屋」を探される方に洗練されたホスピタリティと質の高い「高級賃貸」仲介サービスを提供して参りました。優れたチームワークと「高級賃貸専門」というプロフェッショナリズムで理想のお部屋探しをサポートします。

閉じる

戻る

住宅購入

VIPクラスのお客様との交流を通じ、洗練されたホスピタリティと質の高い売買仲介サービスを提供して参りました。高級物件のオーナー様から多数の物件を専任でご依頼いただくなど、公開・非公開を合わせ業界トップクラスの高級住宅取扱い数を誇ります。

閉じる

戻る

住宅の賃貸募集・管理

変動が激しい都市部マーケットにおいて、長年培ってきた膨大なデータと経験やノウハウをもとに、オーナー様の「貸したい」「管理してほしい」をトータルでサポートします。

INDEX

閉じる

戻る

住宅・土地の売却

変動が激しい都市部マーケットにおいて、長年培ってきた膨大なデータと経験やノウハウをもとに、オーナー様の住宅・土地の売却をトータルでサポートします。

INDEX

閉じる

戻る

賃貸オフィス

賃貸オフィスを探しているテナント様のために、物件のご紹介から条件交渉、契約締結、移転まで、きめ細やかにサポートします。外資系法人の仲介実績も多くあります。

閉じる

戻る

事業・投資用不動産

個人・企業を問わず都心の高級物件のオーナー様より多くの物件を専任でご依頼いただいています。そのため、事業用地、投資用収益物件に加え、自社ビルや社宅等の多彩な物件をご紹介できます。

閉じる

戻る

賃貸企画・経営

都心の高級不動産に特化することにより培った高い専門性と実績により、高い収益性と安定稼働を実現する賃貸住宅の企画・経営をオーダーメイドにてご提供します。

閉じる

戻る

ビル運営管理

都心のマーケット動向を的確に把握した上で、管理コストの適正化や資産の維持、バリューアップなどオーナー様のビル運営管理をトータルにサポートします。

閉じる

戻る

不動産売却

変動が激しい都市部のマーケットにおいて、長年培ってきた膨大なデータと経験やノウハウをもとに、法人のオーナー様の不動産売却をトータルでサポートします。

閉じる

戻る

不動産開発

タワー型大規模賃貸マンションをはじめ戸建・オフィス・国内外ホテルなど幅広い不動産開発のプロジェクトマネジメント業務を行っています。​

閉じる

戻る

ケン・コーポレーション グループ

不動産事業に加え、ホテル事業(プレミアホテルグループ)・太陽光発電事業・エンターテイメント等の文化事業を手掛けています。

閉じる

戻る

ケン・コーポレーション

都心の高級賃貸・高級住宅を専門に取り扱う総合不動産会社として、独自のネットワークと創業40年以上の実績とノウハウを活かし、お客様のニーズを実現するサービスをご提供します。

閉じる

JMFビル渋谷03の賃貸オフィス情報

  • JMFビル渋谷03 外観
  • JMFビル渋谷03 外観
  • JMFビル渋谷03 外観
  • JMFビル渋谷03 外観
  • JMFビル渋谷03 外観
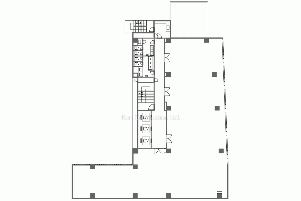
  • JMFビル渋谷03 基準階図面 ※該当の募集とは仕様が異なることがあります。
  • JMFビル渋谷03
  • JMFビル渋谷03
  • JMFビル渋谷03
  • JMFビル渋谷03
  • JMFビル渋谷03
  • JMFビル渋谷03

賃貸

募集中区画: 2

ABOUT

JMFビル渋谷03について

JMFビル渋谷03の設備詳細

  • 新耐震基準

JMFビル渋谷03は多様な飲食店や店舗が立ち並ぶ商業エリアに所在する10階建て(地下2階)中層オフィスビルです。この物件は人通りが多い道玄坂通り沿いに立地。ガラスカーテンウォールを採用した素敵なデザイン、センスの良いビジネスイメージを意識する企業にオススメです。渋谷駅からJMFビル渋谷03周辺には渋谷マークシティがあります。

JMFビル渋谷03の建物情報

住所 渋谷区道玄坂2-11-1
交通/駅徒歩* 山手線 渋谷駅 徒歩7分
半蔵門線 渋谷駅 徒歩6分
東横線 渋谷駅 徒歩6分
階数 地上10階 地下2階
構造 鉄骨造
竣工 2009年11月
情報更新日 2025年12月5日

*「交通/駅徒歩」とは、当該物件の最寄駅(路線)、バス停、およびそこまでの徒歩所要時間を表示します。

JMFビル渋谷03の空室確認・内覧に関するお問い合わせ

建物番号 158941

0120-081-466 03-5413-5611

オフィス ビル営業部(マップ)

※お電話でお問い合わせの場合は「ホームページを見て」とお伝えください。

お問い合わせ・内覧予約

上記一覧以外に新たに募集開始した場合にご案内をお送りいたします。

空室お知らせメール登録

この物件を共有

JMFビル渋谷03の周辺地図

※物件の所在地付近を表すものであり、実際の所在地とは異なる場合がございます。

渋谷エリアの募集中賃貸オフィス建物

山手線 渋谷駅 徒歩7分
半蔵門線 渋谷駅 徒歩6分
東横線 渋谷駅 徒歩6分


JMFビル渋谷03の近隣の駅から賃貸オフィス物件を探す

  • 東京都港区西麻布1-2-7 株式会社 ケン・コーポレーション 宅地建物取引業 国土交通大臣 (8) 第4372 号 取引態様:仲介

共有方法を選択してください

閉じる

  1. HOME
  2. オフィス
  3. 賃貸オフィス・貸事務所
  4. 渋谷区
  5. 渋谷駅
  6. JMFビル渋谷03