お問い合わせ

戻る

住宅賃貸

創業から「外国人エグゼクティブ向け賃貸」にこだわり、都心で「いい部屋」を探される方に洗練されたホスピタリティと質の高い「高級賃貸」仲介サービスを提供して参りました。優れたチームワークと「高級賃貸専門」というプロフェッショナリズムで理想のお部屋探しをサポートします。

閉じる

戻る

住宅購入

VIPクラスのお客様との交流を通じ、洗練されたホスピタリティと質の高い売買仲介サービスを提供して参りました。高級物件のオーナー様から多数の物件を専任でご依頼いただくなど、公開・非公開を合わせ業界トップクラスの高級住宅取扱い数を誇ります。

閉じる

戻る

住宅の賃貸募集・管理

変動が激しい都市部マーケットにおいて、長年培ってきた膨大なデータと経験やノウハウをもとに、オーナー様の「貸したい」「管理してほしい」をトータルでサポートします。

INDEX

閉じる

戻る

住宅・土地の売却

変動が激しい都市部マーケットにおいて、長年培ってきた膨大なデータと経験やノウハウをもとに、オーナー様の住宅・土地の売却をトータルでサポートします。

INDEX

閉じる

戻る

賃貸オフィス

賃貸オフィスを探しているテナント様のために、物件のご紹介から条件交渉、契約締結、移転まで、きめ細やかにサポートします。外資系法人の仲介実績も多くあります。

閉じる

戻る

事業・投資用不動産

個人・企業を問わず都心の高級物件のオーナー様より多くの物件を専任でご依頼いただいています。そのため、事業用地、投資用収益物件に加え、自社ビルや社宅等の多彩な物件をご紹介できます。

閉じる

戻る

賃貸企画・経営

都心の高級不動産に特化することにより培った高い専門性と実績により、高い収益性と安定稼働を実現する賃貸住宅の企画・経営をオーダーメイドにてご提供します。

閉じる

戻る

ビル運営管理

都心のマーケット動向を的確に把握した上で、管理コストの適正化や資産の維持、バリューアップなどオーナー様のビル運営管理をトータルにサポートします。

閉じる

戻る

不動産売却

変動が激しい都市部のマーケットにおいて、長年培ってきた膨大なデータと経験やノウハウをもとに、法人のオーナー様の不動産売却をトータルでサポートします。

閉じる

戻る

不動産開発

タワー型大規模賃貸マンションをはじめ戸建・オフィス・国内外ホテルなど幅広い不動産開発のプロジェクトマネジメント業務を行っています。​

閉じる

戻る

ケン・コーポレーション グループ

不動産事業に加え、ホテル事業(プレミアホテルグループ)・太陽光発電事業・エンターテイメント等の文化事業を手掛けています。

閉じる

戻る

ケン・コーポレーション

都心の高級賃貸・高級住宅を専門に取り扱う総合不動産会社として、独自のネットワークと創業40年以上の実績とノウハウを活かし、お客様のニーズを実現するサービスをご提供します。

閉じる

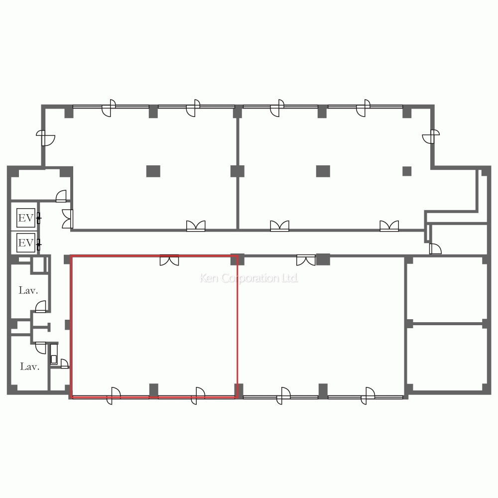
横浜ウエストサイドビル 2階 
(55.7坪 / 横浜市西区北幸)

  • 横浜ウエストサイドビル 外観
  • 図面
  • 横浜ウエストサイドビル 外観
  • 横浜ウエストサイドビル 外観
  • 横浜ウエストサイドビル 外観
  • 外観
  • 間取り
  • 外観
  • 外観
  • 外観
  • 新耐震基準
  • エレベーター
  • 機械管理
  • 個別空調
  • 駐車場 2台
  • OAフロア

特徴・おすすめポイントについての説明はこちら

横浜ウエストサイドビル 2階の詳細情報

  • 月額費用

    相談

  • 面積

    55.7坪 
    (184.17㎡)

  • 募集区画

    2階

賃料 相談 /月
共益費 込 /月
坪単価 相談
坪賃料:相談/共益費:込
敷金・保証金 / 礼金 相談 /  
償却  
更新料  
用途 事務所
階数 地上8階 地下1階建 / 2階部分
入居時期 2026年7月1日 予定
情報更新日 2026年4月16日
住所 神奈川県横浜市西区北幸2-15-10
交通/駅徒歩* 東海道本線 横浜駅 徒歩11分
構造 鉄骨鉄筋コンクリート造
竣工 1989年1月
駐車場 2台

*「交通/駅徒歩」とは、当該物件の最寄駅(路線)、バス停、およびそこまでの徒歩所要時間を表示します。

オーク横浜ビルは神奈川県横浜市西区北幸2-15-10に所在しておりますJR、相鉄、横浜ブルーライン「横浜駅」より徒歩11分の1989年竣工鉄骨鉄筋コンクリート造の新耐震基準物件です。周辺にはビジネス街が広がっておりオフィスビルが立ち並んでおります。

お問い合わせ・内覧予約

横浜ウエストサイドビルTOP

横浜ウエストサイドビルの周辺地図

※物件の所在地付近を表すものであり、実際の所在地とは異なる場合がございます。

空室確認・内覧に関するお問い合わせ

物件番号 1000430013

オフィス 横浜支店(マップ)

お問い合わせ・内覧予約

※お電話でお問い合わせの場合は「ホームページを見て」とお伝えください。

 
この物件を共有 

横浜ウエストサイドビルの他の募集中区画

  • 現在、募集中のお部屋はありません。

  • 成約の際には仲介手数料として賃料の1.1カ月分相当額を申し受けます。
  • 契約に関しては、直接・間接に関わらず仲介手数料が必要です。
  • 本サイト記載の金額のうち消費税課税となるものについては、支払時点で適用される税率により算出された金額でお支払い頂きますので、サイト上の金額と実際にお支払い頂く金額とが異なる場合があることを予めご了承ください。
  • 携帯電話の受信状況は、実際にご使用される携帯電話で室内から通話確認をお願い致します。
  • 契約に保証会社をご利用いただく場合には、保証会社との契約締結並びに保証委託料のお支払をいただきます。
  • 記載されている物件情報の募集条件や建物設備などは、貸主の事情により変更されている可能性がございます。また、募集状況につきましては日々動きがありますため、お問い合わせをいただいた時点で既にご紹介できない場合もございます。あらかじめご了承ください。
  • 掲載している物件が万が一成約の際はご了承ください。
  • 東京都港区西麻布1-2-7 株式会社 ケン・コーポレーション 宅地建物取引業 国土交通大臣 (8) 第4372 号 取引態様:仲介

共有方法を選択してください

閉じる

  1. HOME
  2. オフィス
  3. 賃貸オフィス・貸事務所
  4. 横浜市
  5. 横浜駅
  6. 横浜ウエストサイドビル
  7. 2階 (55.7坪)