お問い合わせ

戻る

高級賃貸住宅

創業から「外国人エグゼクティブ向け賃貸」にこだわり、都心で「いい部屋」を探される方に洗練されたホスピタリティと質の高い「高級賃貸」仲介サービスを提供して参りました。優れたチームワークと「高級賃貸専門」というプロフェッショナリズムで理想のお部屋探しをサポートします。

閉じる

戻る

住宅購入

VIPクラスのお客様との交流を通じ、洗練されたホスピタリティと質の高い売買仲介サービスを提供して参りました。高級物件のオーナー様から多数の物件を専任でご依頼いただくなど、公開・非公開を合わせ業界トップクラスの高級住宅取扱い数を誇ります。

閉じる

戻る

住宅の賃貸募集・管理

変動が激しい都市部マーケットにおいて、長年培ってきた膨大なデータと経験やノウハウをもとに、オーナー様の「貸したい」「管理してほしい」をトータルでサポートします。

閉じる

戻る

住宅・土地の売却

変動が激しい都市部マーケットにおいて、長年培ってきた膨大なデータと経験やノウハウをもとに、オーナー様の住宅・土地の売却をトータルでサポートします。

閉じる

戻る

賃貸オフィス

賃貸オフィスを探しているテナント様のために、物件のご紹介から条件交渉、契約締結、移転まで、きめ細やかにサポートします。外資系法人の仲介実績も多くあります。

閉じる

戻る

事業・投資用不動産

個人・企業を問わず都心の高級物件のオーナー様より多くの物件を専任でご依頼いただいています。そのため、事業用地、投資用収益物件に加え、自社ビルや社宅等の多彩な物件をご紹介できます。

閉じる

戻る

賃貸企画・経営

都心の高級不動産に特化することにより培った高い専門性と実績により、高い収益性と安定稼働を実現する賃貸住宅の企画・経営をオーダーメイドにてご提供します。

閉じる

戻る

ビル運営管理

都心のマーケット動向を的確に把握した上で、管理コストの適正化や資産の維持、バリューアップなどオーナー様のビル運営管理をトータルにサポートします。

閉じる

戻る

不動産売却

変動が激しい都市部のマーケットにおいて、長年培ってきた膨大なデータと経験やノウハウをもとに、法人のオーナー様の不動産売却をトータルでサポートします。

閉じる

戻る

不動産開発

タワー型大規模賃貸マンションをはじめ戸建・オフィス・国内外ホテルなど幅広い不動産開発のプロジェクトマネジメント業務を行っています。​

閉じる

戻る

ケン・コーポレーション グループ

不動産事業に加え、ホテル事業(株式会社ケン・ホテル&リゾートホールディングス)・太陽光発電事業・エンターテイメント等の文化事業を手掛けています。

閉じる

戻る

ケン・コーポレーション

都心の高級賃貸・高級住宅を専門に取り扱う総合不動産会社として、独自のネットワークと創業40年以上の実績とノウハウを活かし、お客様のニーズを実現するサービスをご提供します。

閉じる

  1. HOME
  2. 住まい
  3. 住まいを探す
  4. イプセ代々木上原Hills
IPSE YOYOGIUEHARA HILLS

イプセ代々木上原Hills

01

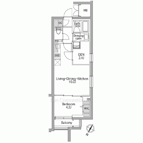
イプセ代々木上原Hills(イプセ代々木上原ヒルズ)は代々木上原駅東口から北側に広がる丘の上に建つ、2024年1月築・3階建のデザイナーズマンションです。総戸数17戸、間取りは1DK~2LDK。周辺は閑静な住宅街で、電車1本で新宿エリアへアクセスができるアクティブな環境での生活を両立させたい方におすすめです。

DETAILS

建物詳細

  • オート
    ロック

  • 宅配ボックス

住所 渋谷区西原3
交通/駅徒歩* 千代田線 代々木上原駅 徒歩4分
京王新線 幡ヶ谷駅 徒歩10分
階数 地上3階 地下1階建
構造 鉄筋コンクリート造
総戸数 17戸
竣工 2024年1月
建物設備・施設 エレベーター、 宅配ボックス、 敷地内ゴミ置場、 オートロック、 ディンプルキー、 ダブルロックキー、 TVモニター付きインターホン、 防犯カメラ
通学区域小学校 西原小学校 (約 400m)

通学経路

情報更新日 2026年4月21日

*「交通/駅徒歩」とは、当該物件の最寄駅(路線)、バス停、およびそこまでの徒歩所要時間を表示します。

マップ

PROPERTIES

イプセ代々木上原Hillsの物件情報

お問い合わせ

建物番号 208186

賃貸 渋谷代官山支店(マップ)

※お電話でお問い合わせの場合は「ホームページを見て」とお伝えください。.

お問い合わせ・内覧予約


AREA

代々木上原・代々木公園エリア

代々木上原・代々木公園エリアのマンション

人気の条件から賃貸物件を探す

人気の条件から購入物件を探す


  • 東京都港区西麻布1-2-7 株式会社 ケン・コーポレーション 宅地建物取引業 国土交通大臣 (8) 第4372 号 取引態様:仲介

この建物にお問い合わせ

ご希望の内容をお選びください。

売買問合せは受付しておりません。

閉じる

オーナー様は下記より
お問い合わせください

共有方法を選択してください

閉じる

  1. HOME
  2. 住まい
  3. 住まいを探す
  4. イプセ代々木上原Hills